Gradimo za vas

Na območju med smučiščem Trije Kralji, hotelom Jakec in planinskim domom na Osankarici nastaja na južnem pobočju pod Velikim vrhom majhno in atraktivno naselje počitniških brunaric.

Naša ponudba

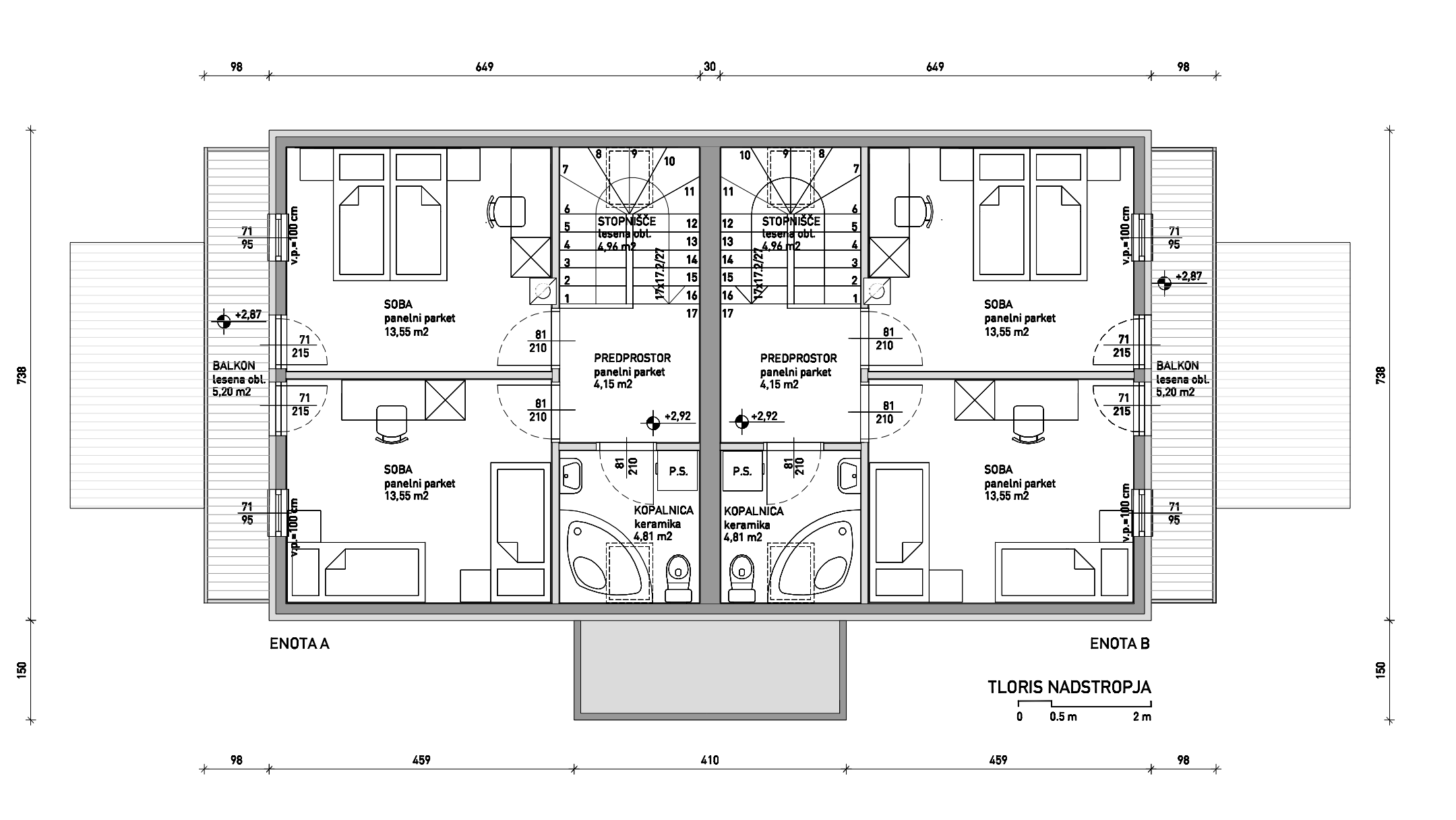
Hiša dvojček je velika 220 kvadratnih metrov, ima dva ločena vhoda, poleg pa je tudi parkirišče. Stoji na zemljišču, ki meri 491 kvadratnih metrov. Vse slike in 3D fotografije z ohišjem so samo simbolična predstavitev notranjosti.

3D predstavitev dvojčka
Tloris dvojčka
Notranjost dvojčka
Card image cap
Card image cap
Card image cap
Card image cap
Card image cap
Card image cap

Kako do nas

Hiša stoji ob družinskem smučišču Jakec na Treh Kraljih, kjer so v vseh letnih časih odlične možnosti za aktiven počitek. Pozimi lahko smučate, poletje pa je primerno za kolesarjenje, pohodništvo, gobarjenje in druge aktivnosti.

Lokacija